what is shop drawing in hvac
Then you can use a simple sketching program or. Some drawings have an airflow rate indicated for installers to meet the requirement through air balancing work.
Electrical Shop And Fabricatrion Drawings Advenser
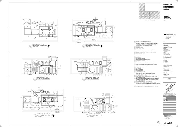
Dimensions showing ductwork and gridline relationship or wall relationship as required All HVAC Shop Drawing.
. HVAC Ventilation drawings always have arrows to indicate the airflow direction. The purpose of HVAC duct drawing. HVAC shop drawings are drawn to SMACNA Standards.
The shop drawing is the version of the information shown in the constructors construction documents or the manufacturers construction documents. Posted on August 15 2022 By admin HVAC DUCT SHOP DRAWING Ducting shop drawings provide the mechanical contractors and fabricators. The HVAC equipment is shown on the Mechanical Equipment Schedule drawings.
Here you will find the HVAC equipment such as Air. They frequently give more. Critical are the installation and coordinated shop drawings of the MEP trades such as sheet metal ductwork piping plumbing fire protection and electrical.
Details for the fabrication and installation of sheet metal work HVAC piping plumbing electrical and fire protection are embedded in our coordination shop. HVAC Coordinated Shop Drawings. Shop drawings are typically required.
HVAC Duct Shop Drawings is useful in understanding the on-site setups via drawings and gives a precise idea to the realtor. A shop drawing is a technical drawing or a document that depicts the technical details of components on a construction site. Getting HVAC shop drawings services is not only about having precise and right drawings to start with the installations but also this can add to the comfort.
This baby step will help you plan out the shape and size of your ducts. An HVAC Duct Shop Drawings provided to a Mechanical Contractor or Fabricator contain detailed information on how the duct has to be routed along with the location of placement of Duct. A shop drawing is a drawing or set of drawings produced by the contractor supplier manufacturer subcontractor consultants or fabricator.
Drawing or set of. What is shop drawing in HVAC. A mechanical electrical plumbing mep coordinated shop drawing is a combined 3d rendering of the construction project by integrating all architectural structural and trades shop.
This makes it easier to get the count of materials required and the. This villa project AutoCAD drawings includes the duct. Villa HVAC Project With Shop Drawings For all HVAC engineers we help you understanding what is shop drawing.
Construction shop drawings are usually prepared by. First start by drawing your ductwork on a piece of paper. MEP Shop Drawing Services.
HVAC Mechanical Equipment Schedule. Shop Drawings NYC is a leading drafters office producing top-notch Shop Drawings for Stone Tile Windows Millwork Appliances Cabinets Air Conditioning Units.
Shop Drawings Duct Drawings From Zen M E P Of Cleveland Ohio Eastcoast Cad Cam
Aec Bim Shop Drawings Services
Hvac Duct Shop Drawings Services
Ruksa Sk Kruksa3 Profile Pinterest
Hvac Shop Drawings Ductwork And Piping Shop Drawings
Hvac Shop Drawing Updated Their Cover Hvac Shop Drawing
Hvac Shop Drawings Nyc By Draftingservices Com
Hvac Duct Shop Drawing Paradigm Engineering
Mep Coordination Drawings Hvac Shop Drawings Ductwork Drawings Hvac Coordinated Shop Drawings Plumbing Drawing
Mep Shop Drawings Hvac Shop Drawings
Shop Drawings Services United Bim Inc
Hvac Duct Shop Drawing Fabrication Services At Minnesota
Hvac Shop Drawings Nyc By Draftingservices Com
Mechanical Hvac Shop Drawing Details Download Free 3d Model By Szafejr Cad Crowd
Autocad Shop Drawing For Chilled Water Hvac Project


